- F-CONプラン
- PLAN.20
F-CONが叶える、静かで快適な暮らし
- 建物本体価格
- 2,730万円(税込)
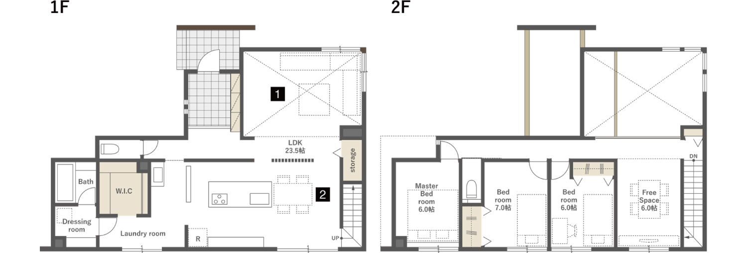
- 間取り
- 3LDK+WIC+フリースペース
- 延床面積
- 136.43㎡
❶贅沢に広がるLDKと“空に抜ける”視線
開放的なリビングと吹き抜けがもたらす抜け感が、住まいに上質なゆとりを与えてくれます。
❷流れるように暮らせる回遊型の生活動線
キッチン・水回り・収納がスムーズにつながり、忙しい日常にも静かな余裕が生まれます。
*WIC…ウォークインクローゼット
開放的なリビングと吹き抜けがもたらす抜け感が、住まいに上質なゆとりを与えてくれます。
❷流れるように暮らせる回遊型の生活動線
キッチン・水回り・収納がスムーズにつながり、忙しい日常にも静かな余裕が生まれます。
*WIC…ウォークインクローゼット
スマートオーダー住宅
関連プラン
関連プラン
-
F-CONPLAN24
-
2階建てPLAN10
-
F-CONPLAN.21
-
F-CONPLAN.22