- F-CONプラン
- PLAN.22
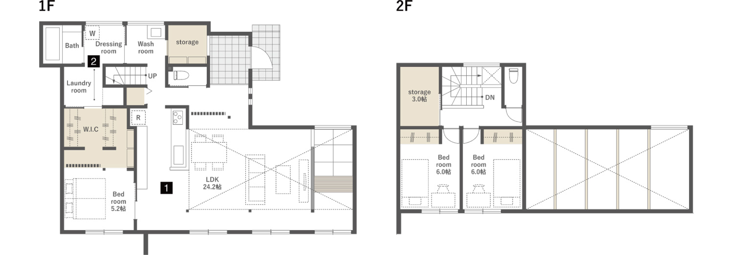
吹抜けのあるLDKと回遊動線で、家族がのびのび暮らせる家
- 建物本体価格
- 2,600万円(税込)
- 間取り
- 3LDK+WIC+ストレージ
- 延床面積
- 130.01㎡
❶ストレス知らずのグルッと回れる動線
家の中を回遊できるから、家事も移動も快適にこなせます。
❷脱衣・洗濯・収納が一か所にまとまった間取り
動作がシンプルでスムーズ。毎日の家事効率をぐっとアップ。
*WIC…ウォークインクローゼット
家の中を回遊できるから、家事も移動も快適にこなせます。
❷脱衣・洗濯・収納が一か所にまとまった間取り
動作がシンプルでスムーズ。毎日の家事効率をぐっとアップ。
*WIC…ウォークインクローゼット
スマートオーダー住宅
関連プラン
関連プラン
-
F-CONPLAN.20 -
F-CONPLAN.21 -
2階建てPLAN11 -
F-CONPLAN23